電氣工程造價知識系統梳理
電氣設備安裝工程是建設工程中的一種常見的、重要的設備安裝工程。電氣設備安裝工程造價涉及到許多電氣工程專業知識。

電氣設備安裝工程的組成
一般的電氣設備安裝工程是以接受電能,經變換、分配電能,到使用電能或從接受電能經過分配到用電設備所形成的工程系統。按其主要功能不同分為電氣照明系統、動力系統、變配電系統等,這種以電能的傳輸、分配和使用為主的工程系統常稱為強電工程。
1.電氣照明系統
將電能轉換為光能的電氣裝置構成照明工程。它包括工礦企業生產用照明和民用建筑照明等。
照明系統可分一般照明系統、局部照明系統和混合照明系統。
電氣照明系統的范圍一般包括:電源引入-控制設備(配電箱)―配電線路―照明燈(器)具。
2.防雷及接地系統
(1)防雷裝置
防雷裝置是為了保護建筑物、構筑物以及設備免遭雷擊破壞的一種保護裝置,通常由三部分組成:接閃器(避雷針、避雷網)或避雷器、連接線(引下線)、接地裝置。
(2)接地裝置
接地裝置由接地體和接地線(接地母線)組成.
電氣設備接地按其作用通常有工作接地、保護接地、保護接零、重復接地和防雷接地之分。
3.動力系統
動力系統是將電能作用于電動機來拖動各種工作設備或以電能為能源用于生產的電氣裝置,如高、低壓或交、直流電機,起重電氣裝置,自動化拖動裝置等。
動力工程通常以一個車間或一棟廠房為一個單位工程,它的范圍為:電源引入―各種控制設備―配電線路(包括二次線路)―電機或用電設備接線―接地、調試等。
4.變配電系統
變配電系統是用于變換和分配電能的電氣裝置總稱,由變電設備和配電設備兩大部分組成。
變配電系統作為一個單位工程時,它的范圍一般從電力網接入電源點起,到分配電能的輸出點的整個工程內容,同時也包括該系統內的照明、接地、防雷裝置等。
常用電氣材料和設備
1.材料
常配電系統是用于變換和分配電能的電氣裝置總稱,由變電設備和配電設備兩大部分組成。
變配電系統作為一個單位工程時,它的范圍一般從電力網接入電源點起,到分配電能的輸出點的整個工程內容,同時也包括該系統內的照明、接地、防雷裝置等。
2.設備
常用電氣設備包括:成套高壓開關柜和低壓配電屏、箱、盤,隨設備帶來的母線支持瓷瓶,組合型成套箱式變電站,電力變壓器,高壓隔離開關,高壓斷路器,高壓熔斷器,互感器,電力電容器,蓄電池等。
電氣施工圖
1.電氣施工圖的組成
電氣設備安裝工程施工圖一般包括變配電工程圖、動力工程圖、照明工程圖、外電工程圖、防雷接地工程圖等。電氣施工圖一般由基本圖和詳圖兩部分組成。
(1)基本圖
電氣施工圖中的基本圖包括圖紙目錄、施工圖說明、系統圖、平面圖、立(剖)面圖、控制原理圖等,設備材料表也屬于基本圖的范圍。
①施工圖說明
在電氣施工圖中,施工說明一般注明的是供電方式、電壓等級、主要線路敷設形式及在圖中未明確的各種電氣設備安裝高度、工程主要技術數據、施工和驗收要求及有關事項等。
②主要設備材料表
設備材料表列出該項工程所需的各種主要設備、管材、導線等器材的名稱、型號、規格、數量,是提供訂購主要設備、材料的依據。
③電氣系統圖
電氣系統圖是依據電氣工程的組成和配電方式畫出的,它是概括地把整個工程的供配電線路用單線連結形式表示的線路圖,它不表示電氣設備、電氣線路的具體空間位置關系。
④電氣平面圖
電氣平面圖一般包括變配電工程平面圖、動力平面圖、照明平面圖、弱電(電話、廣播)平面圖、室外電氣工程平面圖,在高層建筑中有標準層平面圖,干線布置圖等。
⑤控制原理圖
用于對用電設備的控制和保護的電器設備,一般統稱為控制電器。
控制原理圖是根據控制電器的工作原理,用規定的圖形和文字符號畫成的電路展開圖。它一般不表示電器元件的具體安裝空間位置。
(2)詳圖
①大樣圖
電氣工程詳圖多為配電盤(箱、板)、控制盤盤面布置及某些安裝部件的大樣圖。
②標準圖
標準圖是一種具有通用性質的詳圖,它表示一組設備或部件的具體圖形和詳細尺寸,便于制作安裝。
2.電氣施工圖的特點
電氣施工圖不同于機械工程圖,一般的電氣平面圖是在簡化的土建平面圖上繪制的,另外還有一些電氣系統圖、原理圖和接線圖。電氣施工圖的特點是:
(1)簡圖是電氣施工圖的主要形式,即它是用圖形符號、帶注釋的圍框或簡化外形表示系統或設備之間相互關系的圖。
(2)圖形符號、文字符號和項目代號是構成電氣施工圖的基本要素。
(3)電氣裝置和電氣系統主要是由電氣元件和電氣連接線構成,所以電氣元件和電氣連接線是電氣施工圖描述的主要內容。
(4)位置布局法和功能布局法是電氣施工圖中兩種最基本的布局方法。
(5)電氣設備和線路在平面圖中并不按比例畫出它們的形狀和外形尺寸,通常采用圖例來表示的。
《電氣設備安裝工程預算定額》
注意的問題
1.使用定額應注意的問題
(1)定額未計價材料的計算
電氣設備安裝工程預算定額中的未計價材料,大部分都是主要材料。定額中用括弧表示的材料為未計價材料,其價值編制預算時應另行計算;定額中未列消耗量的主材,編制預算時應按施工圖用量,按規定的損耗費增加損耗量。
(2)腳手架搭拆費
電氣設備安裝工程(10kV以下架空線路除外)腳手架搭拆費,計取標準是按
工程人工費的4%計算,其中人工工資占搭拆費的25%,即
腳手架搭拆費=工程人工費×4%
其中人工費=腳手架搭拆費×25%
計算基數為各分項工程人工費、超高增加費和高層建筑增加費中的人工費
(3)工程超高增加費
除章、節說明某些分項定額已考慮高空作業因素外,凡操作物安裝高度超過樓地面5m以上、20m以下的電氣安裝工程,其工程超高增加費按超高部分人工費的33%計算,即
工程超高增加費=超高分項工程人工費×33%

(4)高層建筑增加費
電氣設備安裝工程高層建筑增加費按表2.2的規定計算。該費用全部為人工工資。

(5)安裝與生產同時進行增加費和在有害身體健康環境中施工增加費
這兩種增加費均屬于人工費,它們的計算式為:
安裝與生產同時進行增加費=(各分項工程的人工費+子目系數增加費中的人工費)×10%
在有害身體健康環境中施工增加費=(各分項工程的人工費+子目系數增加費中的人工費)×10%
定額的套用與工程量計算
電氣設備安裝工程涉及的范圍廣,分項工程項目又多,預算定額章節也較多。在編制電氣設備安裝工程計價時,為了不使工程項目套錯定額和工程量漏算,應對整個電氣工程分系統劃分分項工程,分系統計算工程量。
電氣照明系統
1.照明控制設備
電氣照明工程的控制設備主要指照明配電箱、板以及箱內組裝的各種控制開關、熔斷器、計量儀表、盤柜配線等。照明工程控制設備安裝,分成套型控制設備和單體控制設備安裝。
2.配管、配線
配管、配線是指電氣設備安裝工程中配電線路和配電線路保護管的敷設。
(1)配管
配管的工作內容包括:測位、劃線、打眼、埋螺栓、鋸管、套絲、煨彎、配管、刨溝、抹砂漿保護層、接地,刷漆。
水平方向敷設的線管應以施工平面圖的管線走向、敷設部位和設備安裝位置的中心點為依據,并借用平面圖上所標墻、柱軸線尺寸進行線管長度的計算,若沒有軸線尺寸可利用時,則應運用比例尺或直尺直接在平面圖上量取線管長度,如圖所示:

垂直方向敷設的線管(沿墻、柱引上或引下),其配管長度一般應根據樓層高度和箱、柜、盤、板、開關、插座等的安裝高度進行計算,如圖所示

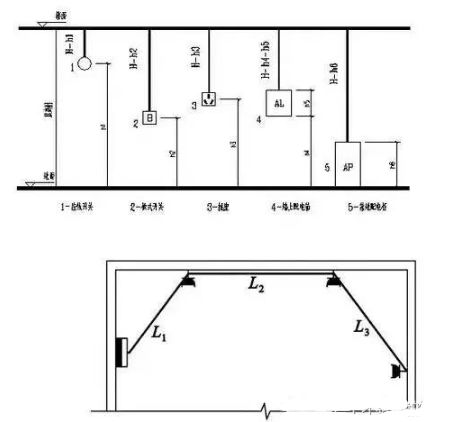
地敷設示意圖
為配管埋地敷設示意圖。設圖中配電箱安裝高度底邊距地1.5米,插座距地0.3米;配電箱至插座配管為沿墻、地面暗敷設,設埋地深度0.1米;則整個配管長度為:1.5米(箱底垂直至地面)+0.1米(垂直入地深)+L1(配電箱與中間墻左插座水平距離,可用比例尺在圖上量出)+0.1米(垂直出地面)+0.3米(垂直入插座)+0.4米(垂直出插座入地)+L2(中間墻兩插座水平距離,可用比例尺在圖上量出)+0.4米(垂直出地入插座)+0.4米(垂直出插座入地)+L3(至右墻插座水平距離,可用比例尺在圖上量出)+0.4米(垂直出地面入插座)
(2)配線
配線工程定額按不同的配線形式編有管內穿線,瓷夾板配線,塑料夾板配線,鼓形絕緣子配線,針式絕緣子配線,蝶式絕緣子配線,木槽板配線,塑料槽板配線,塑料護套明敷配線,以及線槽配線等。
①管內穿線
定額分照明線路、動力線路和多芯軟導線,并按導體材料、導線截面積及芯數劃分項目。
照明線路管內穿線,套用定額2-1169~1173,當導線截面積大于或等于6平方毫米時,應執行動力線路相應項目。動力線路管內穿線,套用定額2-1174~1211。多芯軟導線管內穿線,套用定額2-1212~1226。
工程量計量單位:100m、100m/束,工程量按施工圖圖示單線(束)延長米計算。
計算管內穿線工程量可與計算配管工程量同時進行,計算式如下:
管內穿線工程量=管內穿線單線長度(m)÷100
②塑料護套線明敷配線
定額項目按建筑物結構、護套線芯數(二芯、三芯)和單根線芯截面積大小等因素劃分,使用時分別套用定額2-1313~1336。如塑料護套線BVV-2×2.5在木結構上明敷設,套用定額2-1313,而在磚混結構上明敷時,則套用2-1319。
工程量計量單位:100m,工程量按施工圖圖示分二芯、三芯線路延長米計算,包括水平及繞梁、柱和上下走向的垂直長度加規定的預留線長度。
(3)接線箱、盒安裝
在配管配線工程中,無論是明配還是暗配均存在線路接線盒(分線盒)、接線箱、開關盒、燈頭盒以及插座盒的安裝。
接線箱定額按明裝、暗裝及接線箱的不同規格(半周長)劃分項目,使用時套用2-1373~1376;接線盒按接線盒、開關盒、普通接線盒、防爆接線盒、鋼索上接線盒及明裝、暗裝劃分子目,使用時套用2-1377~1381。如,暗裝開關盒套用2-1378,而暗裝燈頭盒則套用2-1377。
工程量計量單位:10個;工程量按施工圖圖示數量計算,或按施工工藝及規范要求計算。
線路接線盒(分線盒)產生在管線的分支處或管線的轉彎處。暗裝的開關、插座應有開關接線盒和插座接線盒,暗配管線到燈位處應有燈頭接線盒。鋼管配鋼質接線盒,塑料管配塑料接線盒。
下一篇: 項目管理公司好消息:有民企成功... 上一篇: 財政部新規:PPP項目未來支出...
相關資訊
- 青海:調整建設工程現行定額人工費單價!7月1日起執行
- 建設工程造價爭議司法鑒定中決定輸贏的十個造價+法律問題,各方當事人務必門兒清!
- 造價公司如何加強建設工程造價管理
- 撫州市東鄉區方艙醫院改造工程造價預算項目中選結果的公告(撫州)
- 新豐縣遙田河谷嶺南特色鄉村經濟帶項目——最美鄉村示范點(茶江新街)工程造價咨詢中選結果公告(韶關)
- 新豐縣遙田河谷嶺南特色鄉村經濟帶項目——S245線(長安至茶江)沿線環境整治提升工程造價咨詢中選結果公告(韶關)
- 新豐縣遙田河谷嶺南特色鄉村經濟帶項目——遙田河谷特色鄉村精品旅游帶建設——鄉村旅游公共服務和管理基礎設施建設(一期)工程造價咨詢中選結果公告(韶關)
- 珠海市斗門區西湖學校云教室裝修項目造價中選結果公告(珠海)
- 梅州市泮坑水系末端綜合整治工程施工圖預算審核服務中選結果公告(梅州)
- 新豐縣遙田河谷嶺南特色鄉村經濟帶項目——農產品物流交易電商市場(墟鎮中心站)工程造價咨詢中選結果公告(韶關)


